
Свободного назначения




Свободного назначения, 1241.1 м²
Полигонная 8
Красноярск
450 ₽
за м²/месяц1241.1 м²
площадьОписание
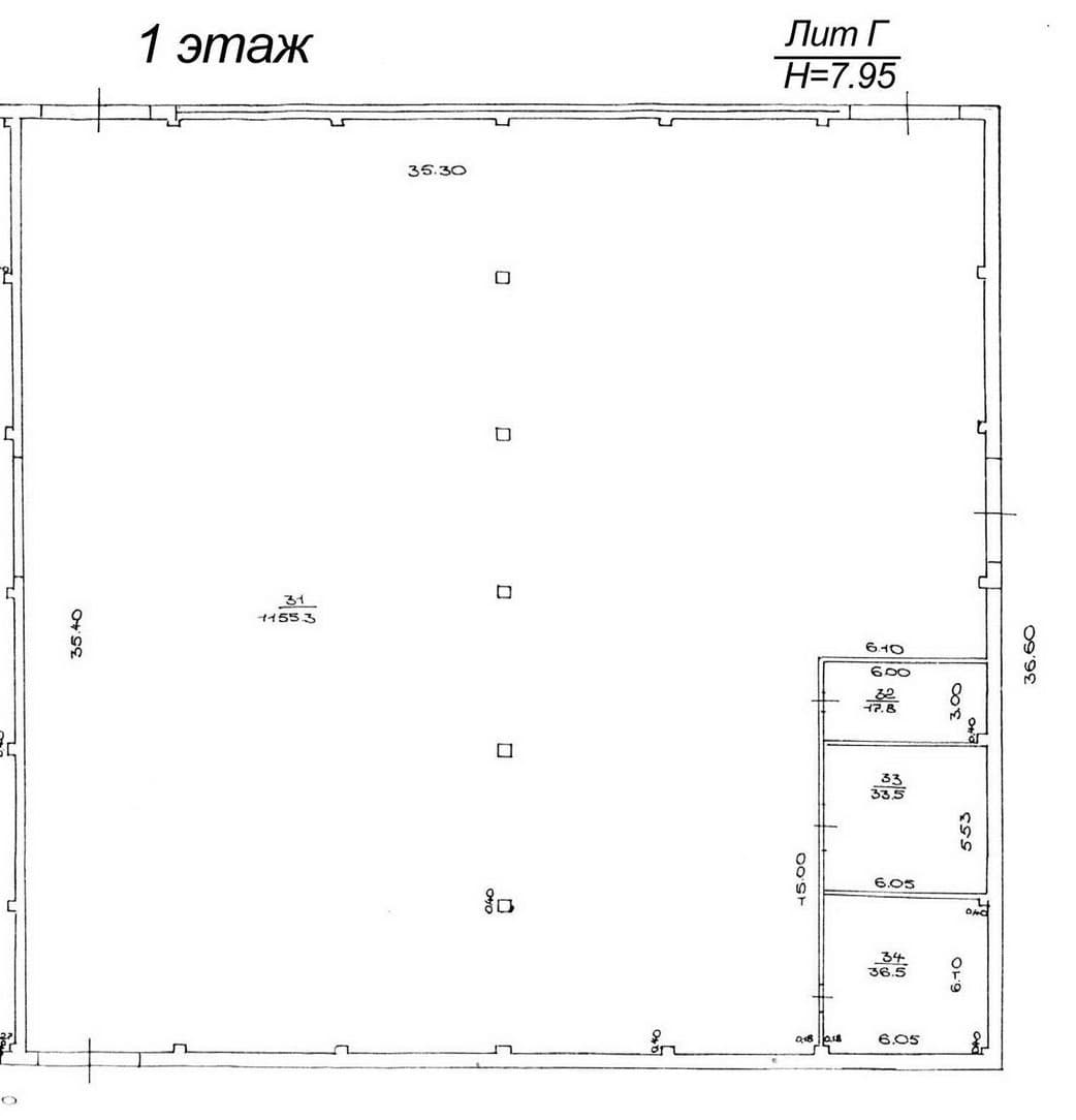
СОБСТВЕННИК сдаст в аренду теплое гаражное помещение, расположенное на охраняемой территории на первой линии. Индивидуальный въезд (у гаража двое активных ворот, еще 2 можно расконсервировать). Характеристики помещения: высота потолка 7,95м, высота ворот 3,95м (4шт). Отопление от собственной котельной, электроснабжение. Доступ к теплому санузлу будет предоставлен. Цена аренды: 450р/кв.м. Потребление электроэнергии оплачивается отдельно по тарифу. На территории так же имеются офисные помещения, открытые площадки.
Этаж
1
Этажность
2
Высота потолков
8 м
Технические характеристики
Площадь1241.1 м²
Этаж1
Этажность здания2
Высота потолков8 м
ОтоплениеЕсть
Мокрая точкаЕсть
Отдельный входДа
Ворота
СтатусДоступно
План помещения

Заинтересовались?
Оставьте заявку и мы свяжемся с вами в ближайшее время